
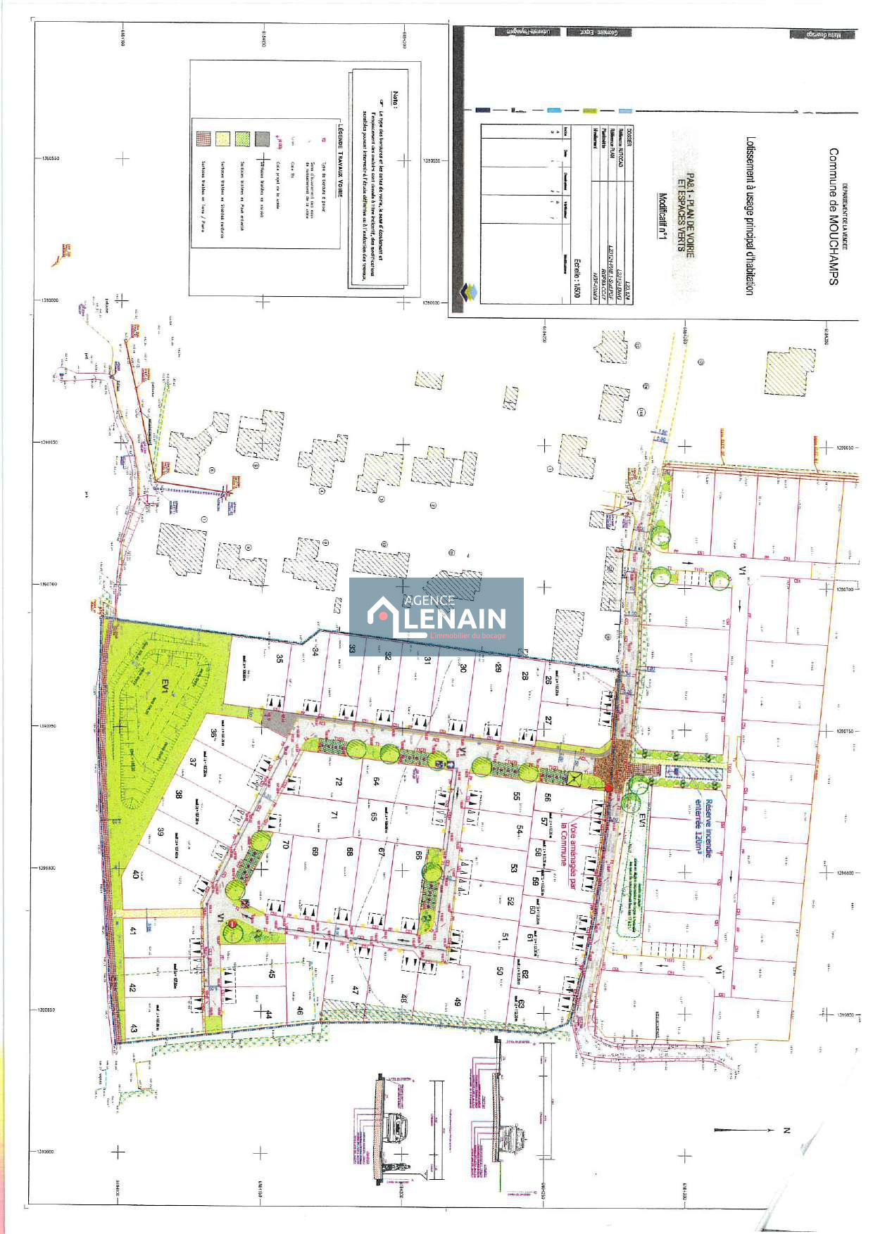
Mouchamps (85640) DANS LE BOURG
32 500 €
Réf : 23569 JR